12492 Nicklaus CourtAuburn, CA 95602




Mortgage Calculator
Monthly Payment (Est.)
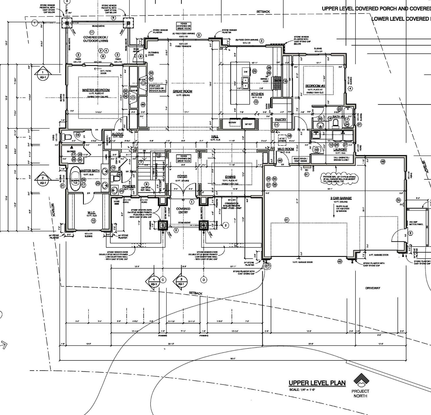
$6,524Build your dream home on the 8th tee box in the prestigious DarkHorse Golf Course Community! This stunning custom home includes owned solar and the opportunity to select your own custom finishes with the builder's designer. Designed for both style and functionality, this home features a main-level Primary Suite and Guest Bedroom, perfect for multigenerational living or visiting guests. The open-concept Great Room and Kitchen create an entertainer's dream space, ideal for gatherings and everyday living. The lower level offers a spacious recreation room and additional bedrooms, providing plenty of room for family, guests, or a home theater/game room setup. Enjoy a large Primary Suite retreat and seamless indoor-outdoor living with a covered patio and outdoor family room, perfect for relaxing or entertaining while taking in the beautiful golf course setting. Once under contract, construction could begin within approximately 45 days. Call today for more details or to schedule a meeting with the builder.
| yesterday | Listing updated with changes from the MLS® | |
| yesterday | Listing first seen on site |
All measurements and all calculations of the area are approximate. Information provided by Seller/Other sources, not verified by Broker. All interested persons should independently verify the accuracy of information. Provided properties may or may not be listed by the office/agent presenting the information. Data maintained by MetroList® may not reflect all real estate activity in the market. All real estate content on this site is subject to the Federal Fair Housing Act of 1968, as amended, which makes it illegal to advertise any preference, limitation or discrimination because of race, color, religion, sex, handicap, family status or national origin or an intention to make any such preference, limitation or discrimination. Terms of Use
Last checked 2026-01-25 09:50 AM PST

Did you know? You can invite friends and family to your search. They can join your search, rate and discuss listings with you.